Signed in as:
filler@godaddy.com
Signed in as:
filler@godaddy.com

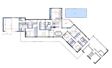
A large home situated on acreage in the Murrumbateman area is in need of some reorganising and extending to better suit the current family requirements. Energy efficiency measures to keep the home cooler during the summer is also required.
Concept stage, discussing the various options and layouts.
Stay tuned for the upgrades in efficiency and comfort.
Stay tuned!
TBD





Copyright © 2024 UnMarked Earth - All Rights Reserved.
Powered by GoDaddy